@@ʼn‚̃y[ƒW‚Ö@@‘O‚̃y[ƒW‚Ö@@@@@@ŽŸ‚̃y[ƒW‚Ö@@ÅŒã‚̃y[ƒW‚Ö@@

45’؈Èã„ PLAN-7„ “쑤“¹˜H„ –Ø‘¢‚QŠKŒš‚Ä„ 4LDK

ŠOŠÏƒp[ƒX

—m•—Ø‚èÈ
‘Ö•tQŽº‚ä‚Á‚½‚èÝŒv

–ÊÏ•\
‚PŠK°–ÊÏ 105.79‡u 32.01’Ø
‚QŠK°–ÊÏ 55.63‡u 16.83’Ø
‰„°–ÊÏ 161.42‡u 48.84’Ø
ŠOŠÏƒp[ƒX

ŠOŠÏƒp[ƒX
‚PŠK•½–Ê}

‚PŠK•½–Ê}
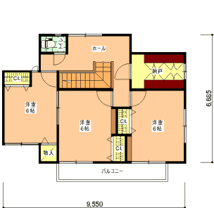
‚QŠK•½–Ê}

‚QŠK•½–Ê}


Дޮ‰ïŽÐƒJƒNŠé‰æÝŒvm ŠÔŽæ‚èƒvƒ‰ƒ“W n „«HOME„«